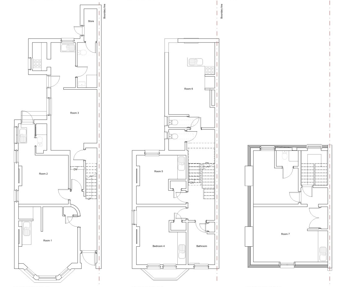
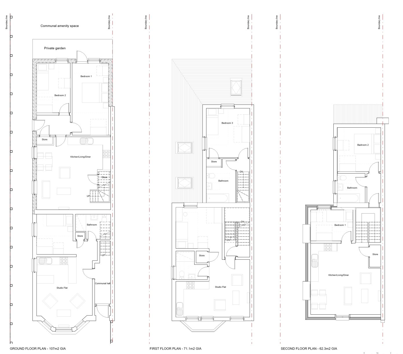
Kempshott Road, Lambeth
Conversion of HMO to 4 flats
Studio Twenty were approached to explore how a run-down building could be developed to its full potential. It had previously been used as a HMO but it was no longer fit for purpose. We explored a number of ideas which led to the submission of a planning application to convert the HMO into 4 flats.
We worked closely with the Local Planning Authority to resolve concerns and obtain approval.







