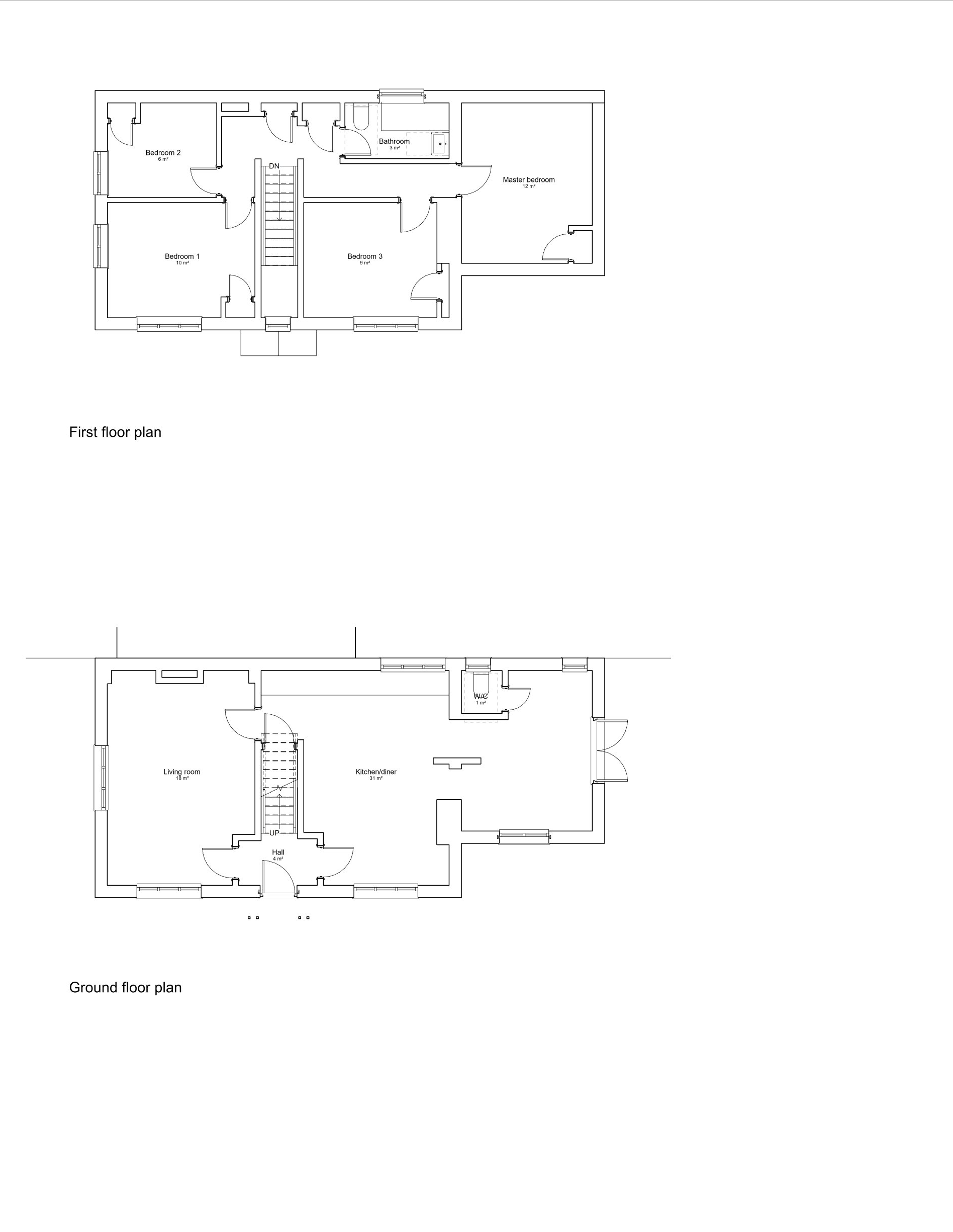
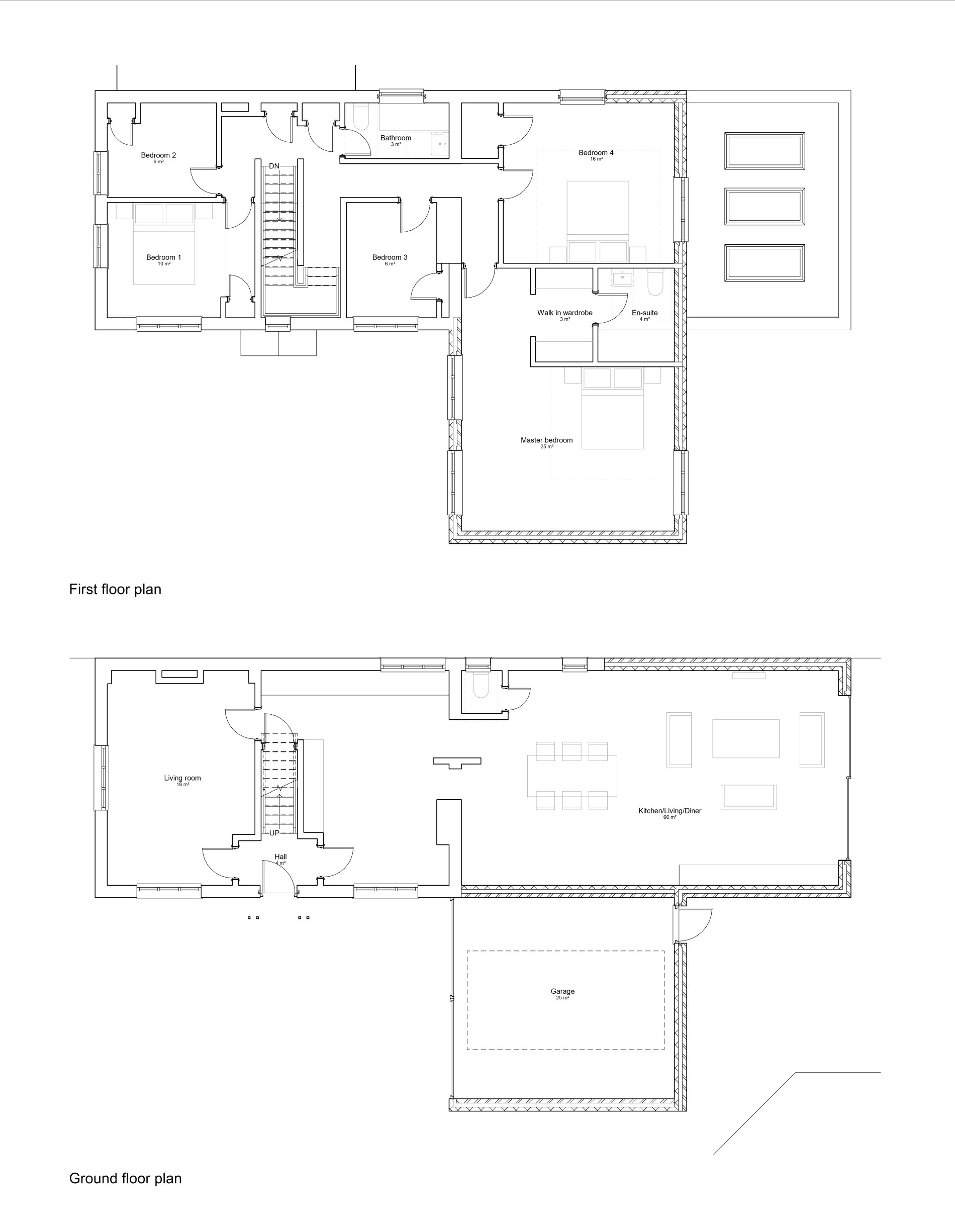
Kingswick Drive, Windsor
Double storey side extension & loft conversion
Studio Twenty Three were approached to design a double storey rear and side extension to this period property. The property is on a corner plot which provided the opportunity for significant development. The client wished to maximise space and this design provides 7 bedrooms and an open plan kitchen-living-dining space.






