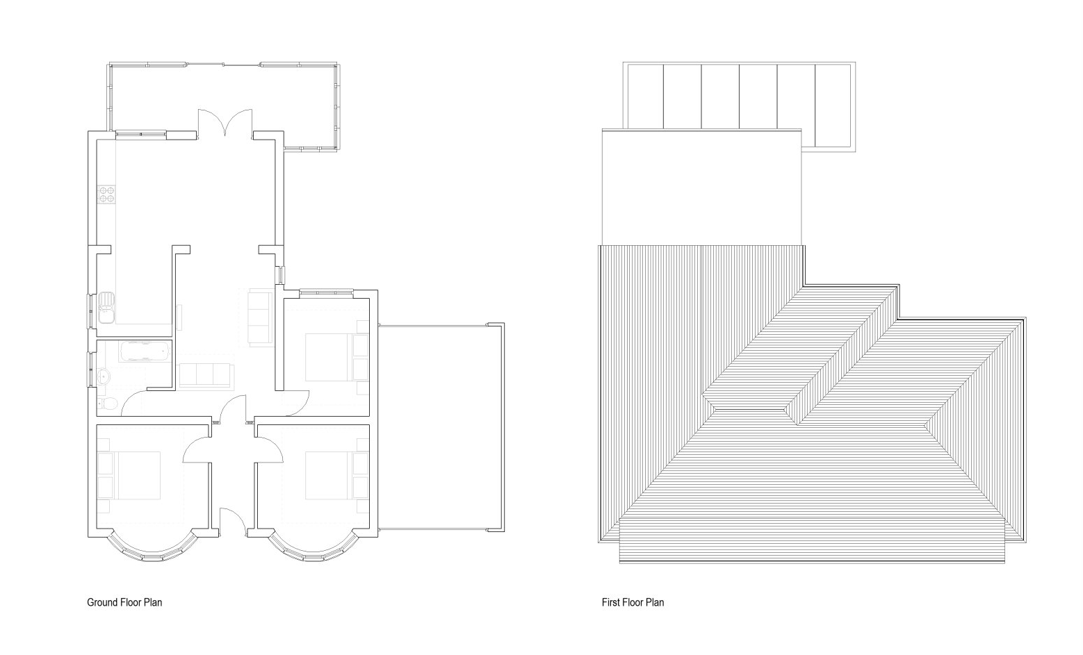
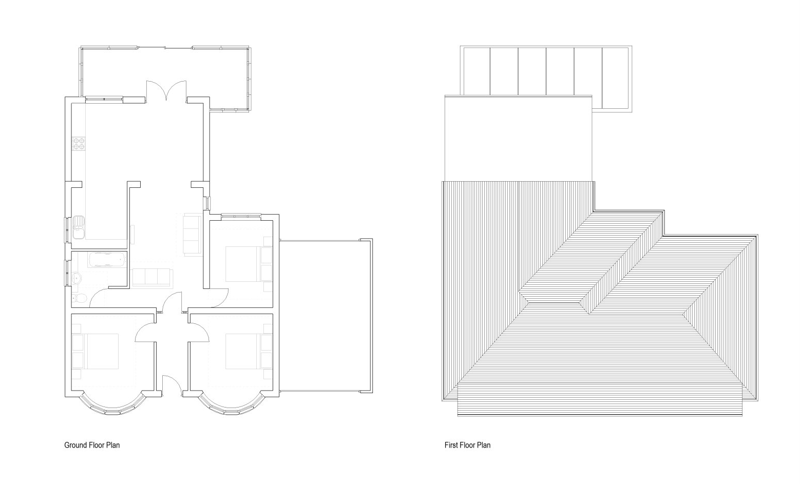
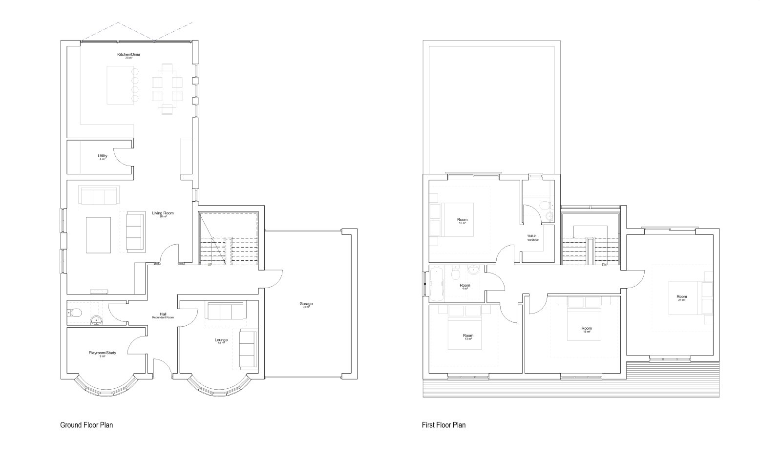
Birchwood Road, Dartford
First storey addition to bungalow
Studio Twenty Three were appointed to design a first storey addition to the bungalow to provide our client with a four bedroom family home, with an open plan living space. The property benefited from scenic views to the rear, therefore we looked to utilise these through the use of glazing and Juliet balconies.






