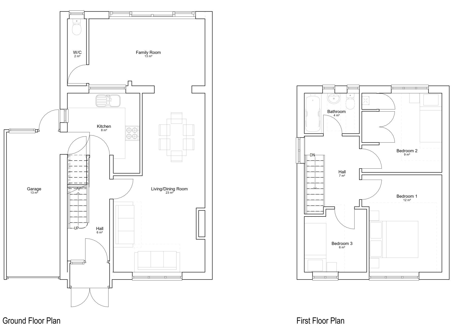
Alderney Road, Erith
Double storey rear extension
Studio Twenty Three were approached to design an extension to the property to create an open plan kitchen-dining area for the family. The first storey rear extension provided a large master bedroom with an ensuite.







