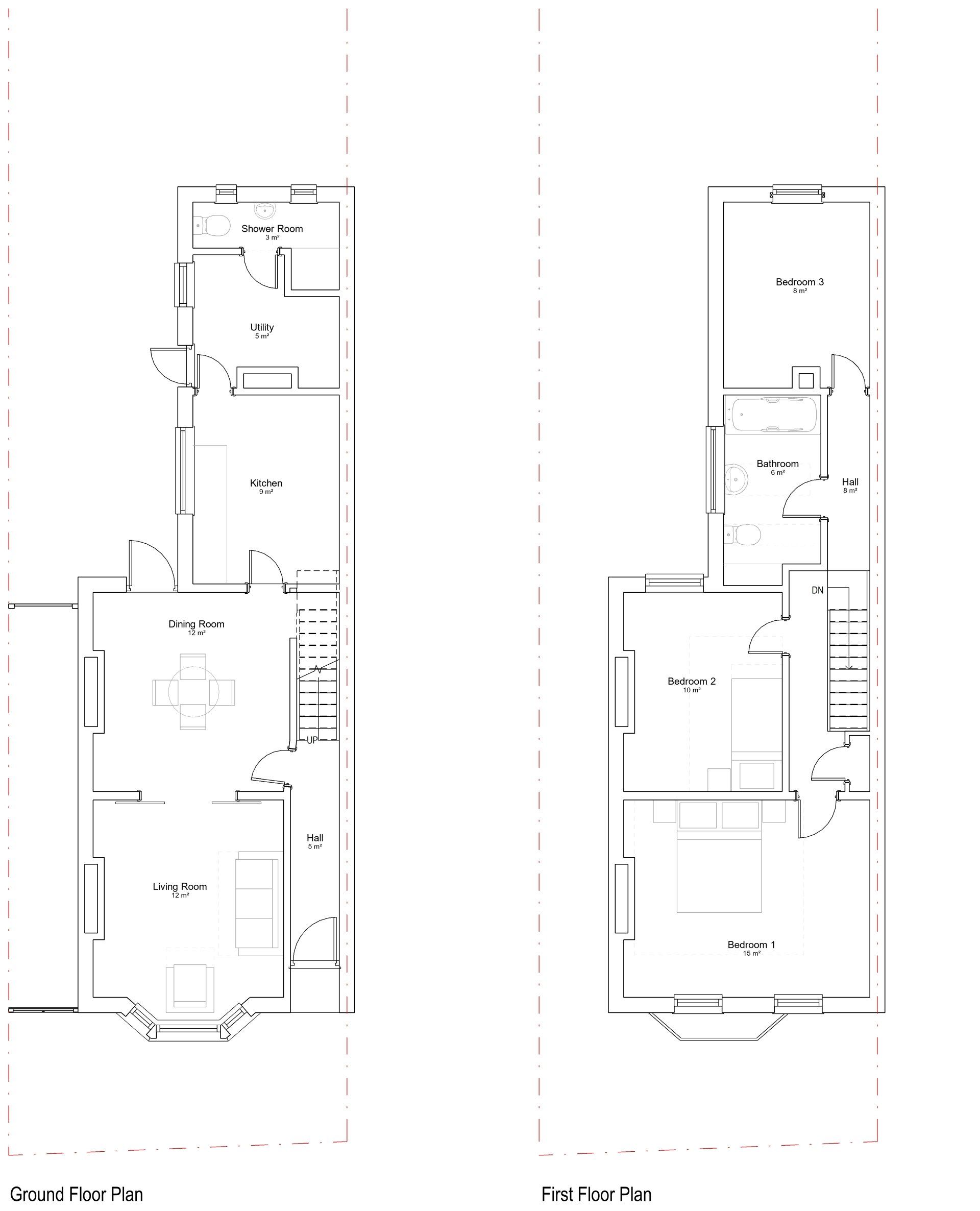
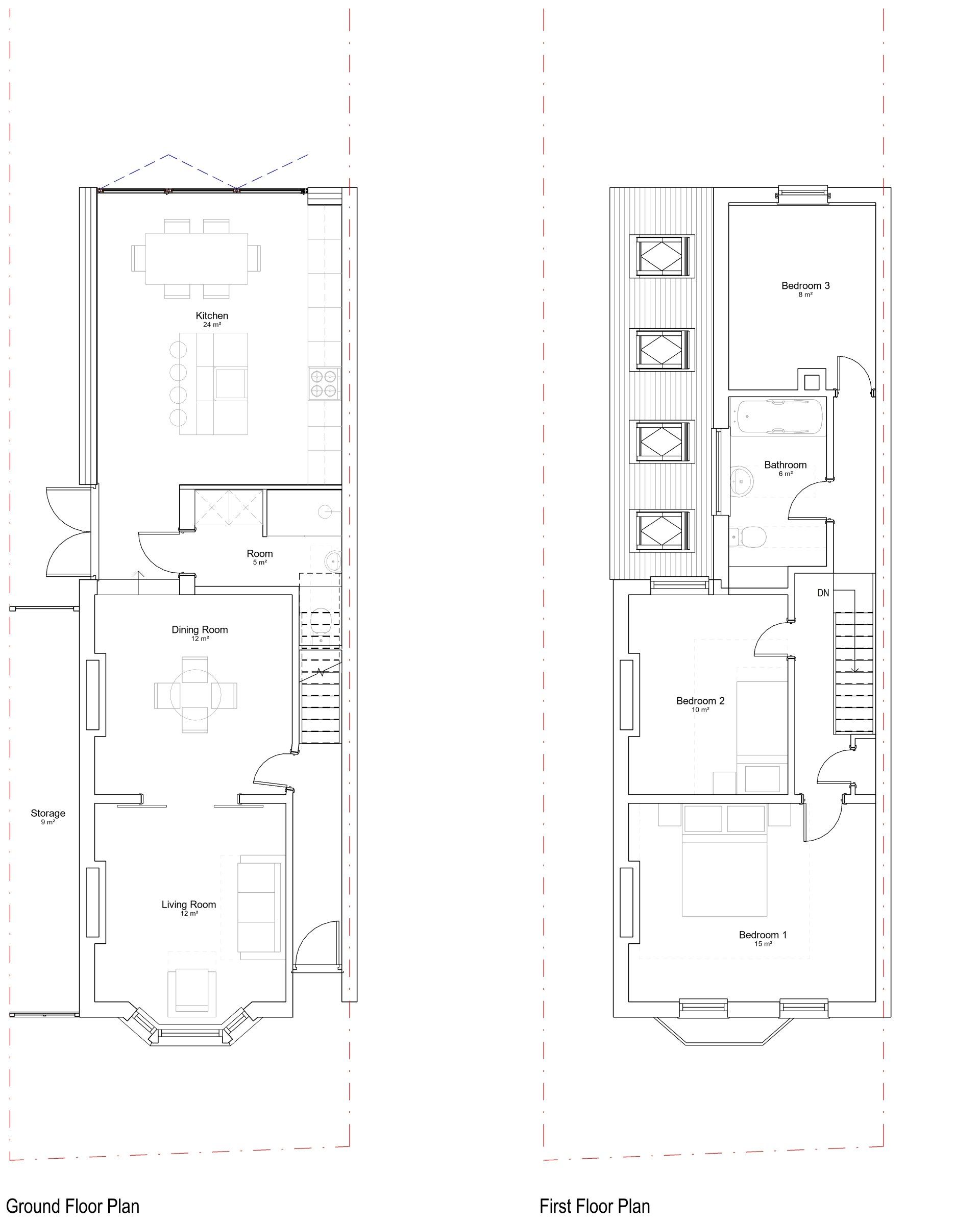
Nelson Road, Kent
Side return extension
Studio Twenty Three were appointed to design a side return extension to provide a large kitchen-dining space. The mono-pitched side return roof allows the space to be filled with light through the skylights. The layout was tailored to the lifestyle of the client and location of the property, incorporating a downstairs bathroom providing a space to wash down after a trip to the beach.







